La colline de Sion-Vaudémont est un élément marquant du paysage et du patrimoine Meurthe-et-Mosellan. Plusieurs milliers d’années d’occupation en ont fait un site d’une grande importance archéologique. La Basilique Notre Dame de Sion, culminant au sommet de la plus haute colline de Lorraine, est inscrite à l’inventaire des Monuments Historiques, tout comme l’ancien Couvent des Tiercelin à ses pieds.
Dominant la campagne du Saintois, le site abrite de nombreuses espèces protégées. La présence de chiroptères en fait une zone Natura 2000, la colline de Sion et ses vergers sont deux espaces naturels sensibles et le site est également une Zone d’Importance pour la Conservation des Oiseaux (ZICO) du fait de la présence d’espèces rares et protégées.
Il s’agit donc d’un cadre de projet d’une grande richesse mais également très contraint. Depuis 2014, nous avançons et adaptons le projet, puis le chantier, aux spécificités du lieu.
Le projet commence par la réalisation d’un schéma directeur d’aménagement. De nombreuses visites, ateliers de concertation et échanges avec les usagers nous permettent de mesurer les enjeux et besoin du projet.
LE COUVENT
De 2013 à 2015, le corps Est du couvent des Tiercelins est reconverti en Cité des Paysages par les architectes Lucien Colin et Pascal Delrue.
Notre projet prévoit la restructuration des ailes Nord, Sud et Est pour accueillir l’extension de la Cité des Paysages.
L’aménagement prévu pour les salles d’expositions est simple et sobre. Le sol est en pierre de Crepey, une carrière locale située à une vingtaine de kilomètres de la Colline de Sion. La purge des plafonds ayant révélé un mauvais état sanitaire du plancher intermédiaire, de nouvelles poutres de chênes sont mises en place, respectant les proportions généreuses des poutres préexistantes et permettant d’accueillir à l’étage de futurs bureaux.
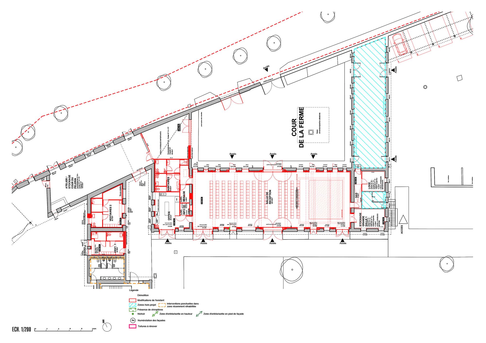
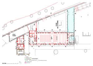
LA FERME
Les aménagements successifs de l’ancien corps de ferme et de ses annexes ont conduits à des découpages complexes. Grâce à une purge complète des cloisonnements divers et à l’ouverture des murs de refends, l’ensemble du volume de l’ancien corps de ferme est dégagé pour offrir un espace polyvalent généreux (250 places). Cette salle de réception est entièrement habillée en lames de frêne de provenance locale, ajourées pour l’acoustique du lieu.
LES AMENAGEMENTS EXTERIEURS
Le projet porte sur la requalification de la séquence d’entrée sur le site, depuis le parking au point bas jusqu’à l’accès à la Cité des Paysages, soit une distance de 250 mètres environ. Actuellement peu qualifiée, couverte d’un enrobé endommagé et de mobilier urbain standard, cette séquence a vocation à retrouver un aspect davantage rustique et authentique, en lien avec le caractère patrimonial des bâtiments qui composent le site. Les matériaux mis en œuvre, les blocs de pierre de Comblanchien et l’enrobé clair au sol, ont ainsi été choisis afin de retrouver cette esthétique de place du village qui s’est aujourd’hui oubliée sur le site au fil de ses transformations.
En plus des obligations environnementales citées précédemment, le projet des espaces extérieurs est également contraint par un classement de l’intégralité du sol de la colline au titre de la protection des Monuments Historiques. Celui-ci doit donc se intégralement en remblai sur l’existant, sans toucher au sol et suivant une logique d’altération minimale des éléments du site. Marqué par une forte pente, le cheminement est donc entièrement reprofilé par l’apport de matière, et maintenu par un jeu de blocs de pierre auto-stable qui servent également d’assises et de support de signalétique. Les interstices générés entre les remblais et le terrain existant sont l’occasion d’aménager de nouveaux massifs plantés en complément de ceux préexistants et de ramener sur ce site historique encore davantage d’espèces endémiques de Lorraine.
Les espaces extérieurs, au-delà d’être un simple lieu de passage et de dessertes des différents bâtiments du site, deviennent ainsi un lieu de rassemblement, de manifestations, de pédagogie et d’expérimentation autour de la biodiversité et du patrimoine lorrain.











































