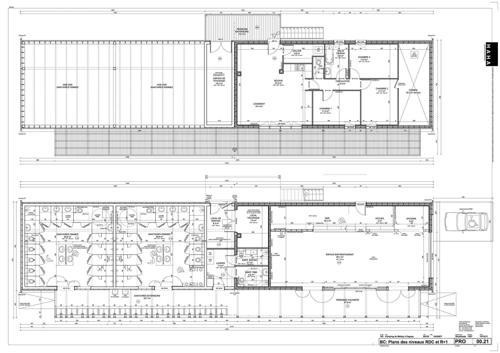
Réaménagement complet du camping existant avec la création d’un bâtiment central (espaces de convivialité, sanitaires, logement gérant), 10 Habitations Légères de Loisirs (HLL), un bassin de baignade naturelle, la mise aux normes de 100 emplacements de camping et la création d’un parking.
Les bâtiments sont construits à bas coût et atteignent de bonnes performances thermiques grâce à l’emploi de structures bois et d’isolants en laine de bois.
Les HLL sont positionnés en lisière de forêt, dans la pente, et reposent sur un trépied en bois. Ils s’ouvrent sur le paysage grâce à un grand châssis vitré qui cadre la vue. L’enveloppe est constituée d’un tressage de tasseaux bois recouvert d’une onduline transparente en murs et en toiture.
Le camping du Mettey couvre 5 hectares plantés de bouleaux, érables, chênes, épicéas et pins sylvestres. Entre les tentes, caravanes et autres roulottes, il s’agissait d’imaginer un bâtiment d’accueil et de restauration ainsi que dix habitations légères de loisirs (hll). Notre objectif : utiliser du bois vosgien ( valoriser le savoir faire vosgien dans la construction bois )l'aménagement et le chauffage. Leur proposition : réaliser des hll de façon artisanale au même prix que les chalets industriels. Les cabanes de catalogues sont « une arnaque par l’image et ne véhiculent pas du tout les valeurs du camping nature », s’insurge Claude Valentin de l’agence HAHA. Très investis dans la recherche, les architectes s’approprient la réflexion technique de façon à « produire des formes et des espaces avec du sens pour retrouver une sensation d’habiter émouvante ». À Vagney, ils font le choix du Mélèze( bardage + ossature ext .) et de l’épicéa pour l’ossature dont ils confient la réalisation à deux entreprises locales. Autant économique qu’écologique, leur démarche minimise les fondations, réduit la gamme des matériaux utilisés et mise sur une compacité qui diminue également les déperditions thermiques. L’implantation des constructions suit la course du soleil. Le bâtiment d’accueil, avec sa ligne brisée de toit qui lui donne valeur de signal, a des baies vitrées ouvrant au sud et une pergola en guise de protection. Une dalle de béton lui apporte l'inertie nécessaire au confort d’été. Les zones les plus chauffées – le restaurant surmonté du logement du gérant – sont regroupées à l’est, à l’opposé des sanitaires.
Mi-photographe, mi-guetteur
La mise en scène de l’entrée est importante pour l’identité du site. « Elle donne une perception cinématographique des lieux », raconte Claude Valentin. L’accès s’effectuant par le bas du terrain, les architectes installent les habitations légères de loisirs en lisière de forêt, sur la partie haute, en position privilégiée. En arrivant, les campeurs aperçoivent à travers les feuilles les vitres carrées des maisonnettes, « comme des yeux qui brillent dans la forêt ». « Dans ce projet, le regard compte beaucoup », poursuit l’architecte. Le volume simple à deux pentes des hll est conçu comme « une machine à voir, une petite boîte à lumière, un appareil à chambre avec un soufflet pour déployer l’objectif ». Le vacancier admire le paysage depuis l’intérieur, comme un photographe. Assises à l’arrière sur un talus, les cabanes se projettent dans le vide vers l’avant, soutenues par un trépied qui renforce la métaphore. Ces pilotis leur donnent également un côté « gracile, éphémère voire animal ». Grâce à l’angulation donnée au plan, elles paraissent plus petites qu’en réalité. Pour les rejoindre, il faut grimper - et l’ascension fait partie de l’expérience. Installées dans la position du guetteur, à l’orée du bois, elles font surgir « des images issues de la littérature, comme celles d’Un Balcon en forêt de Julien Gracq ». À l’intérieur, tout le volume se développe à partir de cette fenêtre habitée, qui accueille le coin salon. Un effet accentué par le cône en 3 plis d’épicéa qui encadre le vitrage.
À la recherche d’une expression originale apportant une image de modernité, les agences HAHA et Studiolada conçoivent une enveloppe innovante, destinée aux hll comme au bâtiment central. Le polycarbonate, pérenne et peu coûteux, de la couche extérieure laisse transparaître un tressage en tasseaux de Mélèze. Ce matériau légèrement ondulé provoque des jeux de brillances et de reflets qui varient sans cesse, « comme si les constructions étaient emballées dans de la cellophane », s’amuse l’architecte. L’ossature secondaire étant apparente, les concepteurs dessinent le lattage avec précision, ajoutant même des éléments uniquement pour l’esthétique. Ils déclinent le procédé jusqu’en toiture. Seule une partie en bardage plus resserré est prévue pour (améliorer l’acoustique de la terrasse des cabanes) Le but est plutôt d'offrir la texture plus chaleureuse du bois en réponse à la terrasse, plutôt que le l'aspect lisse et froid du polycarbonate. Cela permet aussi de caractériser la façade d'entrée en alternance la texture.. « Pour nous, le bois est avant tout une fibre. Nous concevons donc l’enveloppe d’un bâtiment comme un textile, en jouant sur les écartements et en croisant les épaisseurs pour créer une texture », confie Claude Valentin. Nous souhaitons sortir du cliché du chalet grâce à l’innovation et promouvoir avec des (essences locales) une architecture qui exprime un monde contemporain. Même si la filière est encore loin de comprendre qu’il y a là une carte à jouer, nous voulons donner ainsi un signe fort aux artisans ».





































































